Discovery 8500
Discovery 8500
Sleeps up to 4 people
Specs
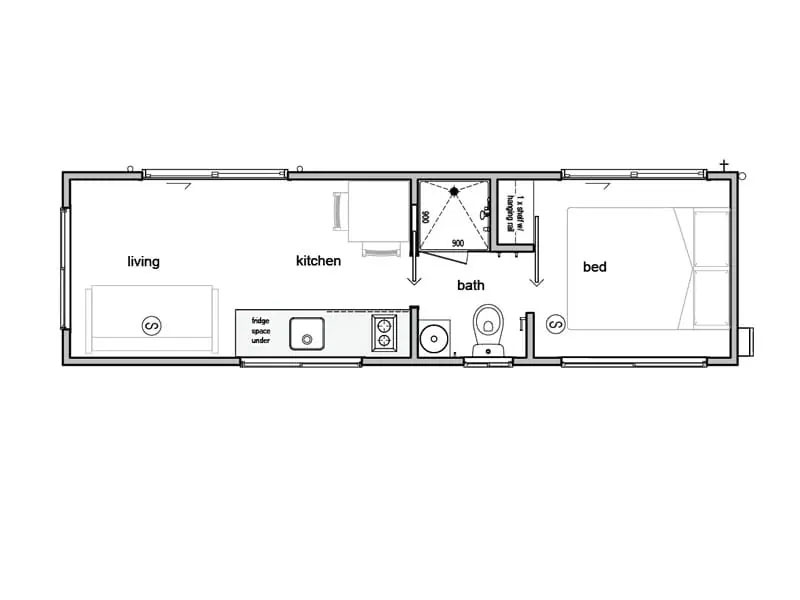
Floor
H: 4300 L: 8500 W: 2400
Product Description
The Discovery is one of our larger tiny homes, so it offers plenty of versatility.
As it can comfortably sleep up to 4 people, it’s great for families to use for residential living or for a getaway.
It’s also spacious enough to use for long term guest accommodation and would certainly make an excellent Airbnb rental.
It’s white contemporary looking interior creates a truly minimalist design.
The Discovery has the room to be flexible in its layout. So if you’re looking for a tiny home for commercial use, such as for a mobile business, this model could be the one for you.
Every tiny home model can be customised to suit your needs. We can also create you a custom design from scratch. Get in touch with us today to have a chat about what you’re looking for in a tiny home design.
Ready to go tiny?
To learn more about our tiny homes, or to request a no obligation consultation, simply fill out the form below. One of our friendly team members will get back to you as soon as possible to answer your enquiry.























